Final Phase of Morgan Creek Golf Community in South Surrey Planned by Infinity Properties, Featuring the Community’s First and Only Apartment Building

Final Phase of Morgan Creek Golf Community in South Surrey Planned by Infinity Properties, Featuring the Community’s First and Only Apartment Building

The Morgan Creek Community in South Surrey is entering its final stage of development, with Infinity Properties advancing the last remaining residential phase in this highly sought-after neighbourhood.

The plan includes 82 townhomes and 119 apartments, completing the community while introducing the first and only apartment building within the Morgan Creek Golf Course community.

 

Originally master-planned and launched in the mid-1990s, Morgan Creek was conceived around the Morgan Creek Golf Course as the community’s central amenity. More than a recreational feature, the course was designed to anchor the neighbourhood’s identity—serving as a social hub and defining the area’s open, scenic character. From the outset, Morgan Creek’s vision emphasized access to green space, golf, and natural landscapes, fostering an active, outdoor-oriented lifestyle that continues to underpin the community’s enduring appeal.

Morgan Creek is widely regarded as one of South Surrey’s most desirable residential communities, characterized by well-maintained streets, mature landscaping, and a quiet, suburban lifestyle. The community attracts established families, professionals, and downsizers who value safety, proximity to quality schools, and access to outdoor amenities like the Morgan Creek Golf Course and local parks. The environment is predominantly residential with high levels of home ownership and long-term residency.

Current Housing

The dominant housing type in Morgan Creek is single-family detached homes on generous lots, often custom-built and featuring high-end finishes, landscaped yards, and views or proximity to golf fairways. According to current real estate listings, detached home prices typically range from about $2,000,000 to $4,000,000 and upward, depending on size, lot, and design. Premium properties, especially those backing onto the golf course or with substantial acreage, can exceed this range.

Infinity Properties' Application

The proposed development at Morgan Creek spans approximately 10 acres and is designed to introduce a mix of residential housing types to the established neighbourhood. The plan includes 82 townhouses and 119 low-rise apartment units, providing a greater variety of housing choices while maintaining compatibility with the surrounding community. 

The apartment component of the development will sit adjacent to the 10th hole of the golf course, offering residents beautiful, protected views of the green and beyond.  

This development is a perfect fit for the area. The larger floor plans and low-density layout make it ideal for downsizers and end-users, whether they’re moving from within the community or nearby neighbourhoods. It offers the space and livability people want, without the scale or maintenance of a high-rise.

Projects like this are well-positioned to perform strongly even in today’s market, as they are end-user focused and designed with livability, functionality, and location in mind. The low-density format allows for a more manageable build-out, enabling buyers to move into completed homes sooner than they would in a high-rise development. With its thoughtful design and practical scale, this project meets the current needs of the community while remaining highly desirable.

Mix of Homes

The development offers a thoughtful mix of townhomes and condos, designed with livability and end-users in mind.

Townhomes:

  • 82 units ranging from 2,200 SF to 3,400 SF

  • Some feature master-on-the-main layouts

  • Ideal for downsizers or young families

  • Spacious and highly livable and desirable

Condos:

  • 119 units in total, with the following breakdown:

    • 24 × 1-bedroom

    • 34 × 2-bedroom

    • 30 × 2-bedroom + den

    • 31 × 3-bedroom

  • Total saleable building area: 116,547 SF

  • Average unit size ~979 SF, which is higher than typical units delivered today

 

Unit layouts are practical, functional, and designed for end-users. This combination of low-density townhomes and thoughtfully sized condos creates a livable, appealing community suitable for a range of buyers. 

Indoor & Outdoor Amenity

The proposed development includes a central amenity building with adjacent outdoor amenity that links the townhouses and apartment buildings, both through orientation, location and
architectural styling. 

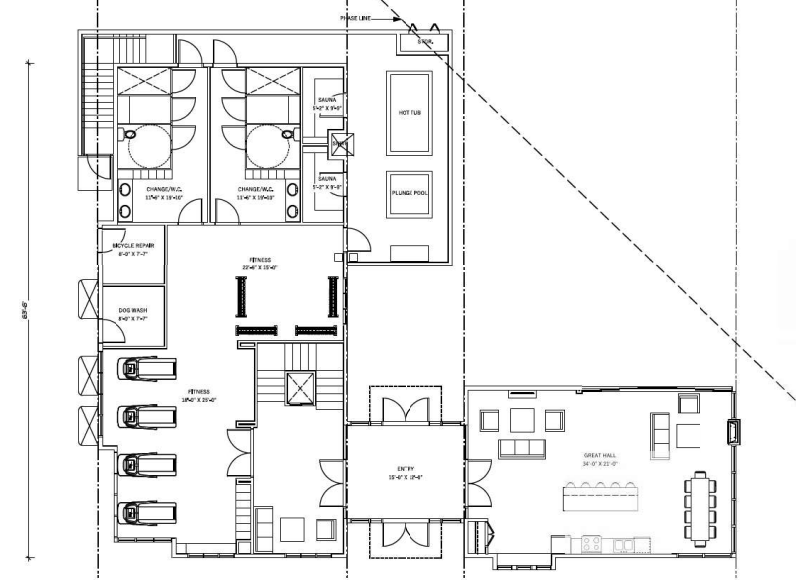
 According to the application, "the indoor amenity building has three levels, and is 518 square metres in area, including the portion of the basement with usable amenity space. On the basement level there is a manager’s office, co-working spaces, and golf club storage. On the main level there is a fitness area, change/washrooms, bicycle repair area, dog wash area, saunas, hot tub and plunge pool, and a great hall (lounge/party room). On the upper level there is a billiards room, washrooms, a kids craft room, cigar lounge and an outdoor deck."

About Infinity Properties

Infinity Properties has a strong reputation for high-quality craftsmanship, thoughtful design, and a focus on end-users. Their experience with golf course communities like The Links in Guildford, as well as master-on-the-main homes, shows a clear understanding of the buyers who live in these neighbourhoods. I’m excited for this Morgan Creek development, as it represents a well-designed, livable, and highly desirable final phase in one of South Surrey’s most sought-after communities.

Application: https://www.surrey.ca/sites/default/files/corporate-reports/CR_2025_R272.pdf

Work With Manraj

Whether you're new to the housing market, an investor, or a homeowner planning to switch properties, trust in Manraj's relational and data-based approach to provide you with the right knowledge for your next move.